“Utblick/view out” projected on skin using natural light + double-convex glass lens (1:1 sample)
Utblick! Cinematographic Tectonics + the Deep Urban Dwelling
This project is a design experiment on housing architecture focused on the topic of “utblick”/”view out”. It aims to explore cinematographic mechanisms as potential strategic elements in housing architecture. In particular, their capacities concerning the production, presentation and experiences of utblick within and around the urban dwelling unit.
Boverket (2020) defines utblick as: “The rooms characteristics regarding the possibility of contact with the surroundings”. In a general manner, a provision of information about the local exterior environment to interior spaces (and vice versa).
In 2022 Boverket shared a series of proposals for new building regulations for review. a removal of utblick along with the distinction of “direct daylight” from Swedish building code is proposed. Daylight is recognized regardless of how it enters the room. It could be through a window, as well as through several layers of glass, reflected daylight, fiber optics or other technologies. A technology neutral approach deployed to recognize more solutions - as long as the dwelling does not constitute an “unacceptable risk for health”.
If this is how the daylight gets here - how does the utblick get here? (And what does this type of dwelling contribute to the city?)
The design investigations were conducted through a mixed-mode research methodology consisting of: archival research tracing the origins and development of “utblick” in Swedish housing regulations (from 1874, to the 2022 proposition and 2024 additional proposition currently under review), case study research addressing three different aspects of the project (cinematographic mechanisms, cine-mechanistic dwellings, and the deep dwelling unit typology). Findings informed prototyping, testing and experiments operated in a physical working model. The optical table, a contraption where physicists carry out optical experiments, becomes an architectural laboratory for housing design.
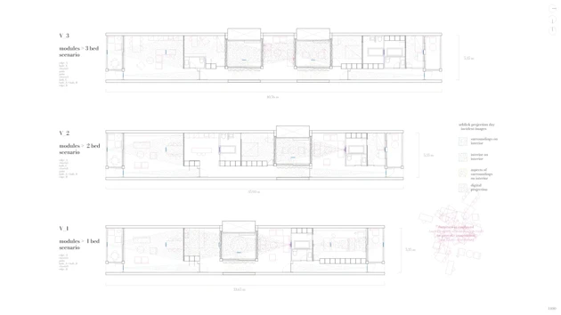
Based on post-technological and phenomenological approaches, a deconstruction and domestication of the light projection mechanism was carried out. Resulting in a sole scaled-up double convex lens, projecting the image not through digital means but by optical principles (requiring precise distances). Due to this specificity, a modular approach was employed, producing three potential dwelling unit configurations: 1 room, 2 room and a 3 room variant. The design proposal is an alternative spatial configuration of the deep urban dwelling unit, along with the integration of optical components in domestic space. A light projection mechanism for dwelling in and through.
Lydia Bruhn


Prologue: enter “the building rules of opportunity” – (unit in cluster) If this is how the daylight gets here, how does the utblick get here? And what does this type of dwelling contribute to the city? (1:1 sample, ai, line drawings, mock-up)

Projection situations->modules: passing on light+images/negotiating privacy (plan+elevation+axo)

Modules->Dwelling prototypes: V_3, V_2, V_1 (plan)

Focus V_1 (plan+section+elevation+atmosphere)

Dwelling prototype V_1: projection scenarios (plan)